本论文是一篇超高层建筑类有关论文发表,关于超高层建筑核心筒设计的与相关毕业论文的格式范文。免费优秀的关于超高层建筑及高层建筑及建筑核心方面论文范文资料,适合超高层建筑论文写作的大学硕士及本科毕业论文开题报告范文和学术职称论文参考文献下载。
【摘 要】随着中国经济快速发展,国际化大都市进程不断推进,超高层建筑作为当今建筑凸显标志性的一种手段,如雨后春笋般不断拔地而起,迅速被放大和膨胀.
高层建筑的不断迅速发展,已成为建筑发展趋势的一种必然方向.但如何有效、合理布置核心筒平面使超高层建筑的“平均得房率”得到有效提高?如何有效布置核心筒内竖向交通,使人员动线通达顺畅、合理?如何解决高层建筑人员疏散问题,合理布置疏散流线?
针对以上问题,本文将着重对高层建筑核心筒设计进行研究和分析,并给出相应的研究方法和解决方案.
【关键字】超高层建筑;核心筒;得房率;竖向交通;消防疏散
1超高层建筑现状概述
高层建筑发展至今,已经有一个多世纪的丰富发展史.作为建筑设计发展过程中一个重要的里程碑,高层建筑被城市建筑师们誉为“城市的天际线”这一美称,突显出高层建筑及超高层建筑为衡量城市发展的一个必要要素.
据不完全统计,上海现居全球超高层建筑数量之首.其中,上海在1990~1999年10年期间,高度大于150米的超高层建筑为40幢;2000年~2005年仅5年中,上海的超高层建筑已达32幢;至2008年为止,上海目前的高层建筑有8700多幢,超过100米的超高层建筑有400多幢.
本文来源:http://www.sxsky.net/jingji/0511877.html
2超高层建筑核心筒设计属性分析
2.1设计难度分析
超高层建筑之所以被称之为“超高层建筑”,正是因为此类建筑的高度远远超过其他建筑的高度.超高层建筑的建筑高度超过100米,主要竖向交通依靠平面布局当中一个叫“核”的区域完成.此外,超高层建筑的主要结构高宽比区别于其他建筑.电梯运行方式也不同于其他建筑,消防疏散及设备系统也有别于其他种类建筑设计,更加复杂、综合性强,设计难度较大.
2.2平面布置分析
超高层建筑的核心筒设计是整个超高层项目中最为重要的设计内容.核心筒设计决定着高层建筑的形态构成,在空间设计上决定着功能空间的使用模式.超高层建筑中的核心筒在本平面中作为“心脏”,它承载着主要的设备、辅助使用、竖向交通等重要使用功能.但对高层建筑来讲,单层面积因防火分区2000平米的规范要求,有效减少核心筒的面积而增加平均得房率,将会是考验超高层建筑核心筒合理布置的一个重要方面,也是超高层建筑设计中的一个值得研究和探讨的方面.根据核心筒平面布置位置划分:1)平面中心排布;2)筒体偏向一侧;3)筒体偏向某一端部.
以上三种超高层核心筒布置方式均根据项目功能性质不同而具体设计,均有利弊点.以超高层办公建筑作为例子分析结论得出,最合理的布置方式选择应该是第一种(平面中心排布)方式.平面整体使用空间争取至最为宽敞舒适的尺度,能够利用的空间较集中.辅助空间中的卫生间、设备机房及管井、疏散楼梯间、卫生间及茶水间等均布置在平面中央核心筒内,最大的增加了使用空间面积,提高单层面积得房率.
| 有关论文范文主题研究: | 关于超高层建筑的论文范本 | 大学生适用: | 专科论文、学校学生论文 |
|---|---|---|---|
| 相关参考文献下载数量: | 69 | 写作解决问题: | 如何写 |
| 毕业论文开题报告: | 论文模板、论文小结 | 职称论文适用: | 期刊目录、职称评中级 |
| 所属大学生专业类别: | 如何写 | 论文题目推荐度: | 免费选题 |
3超过高层建筑核心筒设计特点
3.1得房率
大学超高层建筑论文怎么写
播放:26834次 评论:4046人
得房率是衡量整栋超高层办公甲级写字楼的一个重要指标之一,行业标准要求,一般甲级写字楼得房率须保证在65%以上,因此核心筒的合理布置非常重要.超高层建筑核心筒肩负着重要垂直竖向交通的重任,同时负责整栋建筑的设备机房、机电管井以及功能使用的卫生间、茶水间也布置其中.根据经验得出,超高层建筑当建筑高度在100~200米之间,核心筒的标准大小一般为标准层面积的40%不到,才能算是合理有效的布置方式.
举例说明天津金融街融世中心项目的超高层办公楼得房率.本项目中A塔楼为一栋建筑高度177.85米,单层建筑面积2000㎡的超高层甲级办公楼.核心筒内布置17台高速客梯,其中总6台低区、6台中区、5台高区客体;筒内中心位置设置2台消防电梯和2间消防楼梯间;2间空调机房及若干设备管井.标准层核心筒面积约为520㎡,约占标准层面积的74%.
3.2电梯布置(竖向交通)
超高层建筑核心筒内主要竖向交通由多部高速电梯承担着人的竖向动线运动.由于甲级办公楼行业规定,电梯等候时间和电梯的运输能力(5分钟内运送人员占总人数的比例:HC5)是另一个重要指标,对其产生直接影响的是电梯的速度、数量和载客人数.另外,电梯的数量和大小又直接影响着核芯筒面积的大小.
此外,超高层核心筒内按照《高层民用建筑设计防火规范》规定,还需布置消防电梯,电梯数量按照标准层单层面积决定.除了客运、消防关系着电梯的设计外,整栋建筑中的所有货运流线,也需通过核心筒内的竖向交通解决.因此,超高层建筑核心筒肩负着整栋建筑的客运流线、货运流线、消防疏散三个重要的方面.
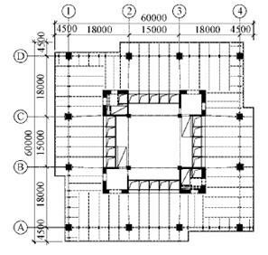
举例说明天津金融街融世广场项目的超高层办公楼电梯的布置形式及竖向分区.本项目电梯布置遵守电梯计算规定,通过计算结果在低、中、高区分别布置了6台、6台、5台高速客体,3台一组集中布置于核心筒内,同时在筒中央布置2台1600kg的消防电梯和2间消防疏散楼梯间.(如下图1)
天津融世中心-垂直交通系统分析图1
本项目因是一项成本控制项目,业主物业形式不同于其他常规物业,因此在A塔楼方案期间针对核心筒的布置,给出了多轮方案.通过合理排布及电梯计算规则的不断完善,得房率自65%直升至74%,核心筒布置方案过程如下:
3.2.1方案一:核心筒布置如右图(一)
电梯布置方式:北侧4台低区并列排布,西侧5台中区及1台消防电梯,东侧5台高区及1台消防电梯,消防电梯均兼货梯使用;标准层核芯筒面积:700平米;得房率:65%;布置分析:核心筒面积大,侯梯厅面积浪费,得房率低,并且导致低区部分核心筒偏心;
3.2.2方案二:核心筒布置如右图(二)
电梯布置方式:西侧4、3台低区并列排布,东侧6台中、高区两组排布,西南
.png
)
超高层建筑类有关论文范文集
超高层建筑类有关论文范文集,与超高层建筑核心筒设计的与相关论文发表参考文献资料: